sábado, 2 de abril de 2011

HERMAN HERTZBEGER- EDIFÍCIOS ESCOLARES

Teoria e Crítica da Arquitetura - 2009
quinta-feira, 15 de outubro de 2009
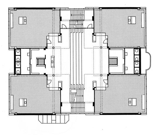
Apollo Schools - Montessori School and Willemspark School, Amsterdam.

 [apollo+9.JPG] 
No início da década de 1980, Hertzberger projetou as Escolas Apollo: Willemspark e Montessori, duas escolas com diferentes sistemas de ensino. Os prédios são muito semelhantes, em noventa graus entre si com base no mesmo lote, em Amsterdam. Existem importantes diferenças entre elas devido ao assentamento e, em conseqüência, orientação diferente das janelas das salas, e também devido aos diferentes princípios das duas comunidades de escolas. Contudo, as duas escolas surgiram do mesmo programa espacial de requisitos e se desenvolveram a partir do mesmo ordenamento de construção, como um projeto comum. Os mesmos meios arquitetônicos foram usados para resolver problemas específicos, segundo o próprio arquiteto, esses edifícios possuem o mesmo vocabulário e a mesma gramática arquitetônica.

[apollo+3.JPG]
A valorização de áreas sociais é uma das características predominantes nas obras de Hertzberger. As escolas Apollo são interessantes na medida em que sugerem uma oportunidade para desenvolver uma comunidade entre duas escolas com diferentes abordagens pedagógicas. A praça urbana oferece oportunidade que todos se encontrem no dia-a-dia ou em eventos especiais, caracterizando-se como importante área para interação entre alunos, pais e a comunidade em geral.

 [Apollo+Schools+-+Montessori+School+and+Willemspark+School+Amsterdam,+The+Netherlands+3.JPG]
Assim como em outras obras de Hertzberger, aqui também pode ser constatada atenção ao detalhe e consideração cuidadosa das necessidades dos usuários – crianças, professores e pais.

As salas de aula são organizadas em torno de um espaço comunitário, que é o coração do edifício. As crianças convergem automaticamente para o centro, gerando muito mais oportunidades de contatos casuais entre alunos de diferentes turmas. De acordo com o arquiteto, isso poderia estimulá-los a fazer coisas juntos, pelo simples fato de que alunos e professores passariam a se ver muito mais. O espaço central das duas escolas Apollo vai se elevando em secções a cada meio andar, configurando-se como “hall-anfiteatro” e aumentando o campo visual, o que não seria possível com uma divisão rigorosa em andares superpostos. O projeto desse espaço em dois níveis incentiva situações em que há atores e público, com crianças sentadas nos degraus das escadas, além de se configurar como ponto de ligação entre as salas de aula. A própria escolha de um material quente, madeira, combinada com a forma, é um convite para as crianças para usarem o espaço ativamente.
Os professores e o diretor ocupam a “sacada” superior, que é aberta e convidativa, expressando que as crianças podem ir até eles a qualquer momento.

     [apollo+4.JPG]     [apollo+7.JPG]
         [apollo+5.JPG]
Os limiares dos espaços das salas de aula são cuidadosamente considerados nas escolas Apollo. Na entrada de cada sala há um “alpendre”, que pode servir como local para se estudar sozinho ou em pequenos grupos, etc. É um meio termo: não se está na sala de aula, mas também não se está isolado desta, nem no saguão. Esses espaços consistem em uma superfície de trabalho com iluminação própria e um banco encostado a uma parede baixa. Como na escola de Delft, há um expositor de vidro entre a sala de aula e espaço de circulação, dando destaque ao trabalho das crianças e criando um intercâmbio de luz e vistas. Para tornar ainda mais sutil o contato entre sala e hall, foram utilizadas nas salas de aula meias-portas, dando aos professores a oportunidade de variar a abertura do espaço de acordo com a atividade.
 

As gradações de acessibilidade na escola, sua hierarquia espacial – das áreas comuns para as privadas – é reforçada fortemente pela iluminação. O saguão possui clarabóias de vidro, que possibilitam iluminação natural e máxima visibilidade. As escadas para o último andar foram feitas tão transparentes quanto possível para evitar a obstrução do contato visual e para que a luz do sol que entra pela clarabóia penetre no espaço. As salas de aula possuem instalações de luz fluorescentes para o ambiente e grandes janelas que possibilitam entrada de luz do dia. Na entrada da sala, lâmpadas fluorescentes escondidas sob um material plástico transparente amarelo lançam focos suaves de luz sobre as superfícies de madeira do local de trabalho.
 [Apollo+Schools+-+Montessori+School+and+Willemspark+School,+Amsterdam,+The+Netherlands.JPG]
 [Apollo+Schools+-+Montessori+School+and+Willemspark+School+Amsterdam,+luz.JPG]
Muitos elementos de construção padrão têm uma utilização secundária, permitindo que espaços que seriam superficiais ganhem vida. Parapeitos de janelas são alargadas, tornando-se mesas ou espaços de trabalho, além de oferecerem oportunidade para que as crianças exponham trabalhos manuais. De acordo com o arquiteto, esse é o tipo de coisa que torna a criança capaz de se apropriar de um espaço e de se sentir à vontade nele.

Hertzberger defende a importância de tornar o edifício tão convidativo quanto possível, ativando cada componente. Um exemplo é o espaço em frente à entrada da escola sob a escada que conduz à escola. O arquiteto, baseando-se no fato de que qualquer tipo de degrau ou saliência na entrada de escolas se torna assento para as crianças, fez o lance da escada se erguer a partir de uma plataforma, evitando que o espaço se degenere como canto escuro e mal-cheiroso e valorizando a área. Segundo ele, “é menos uma questão de inventar do que de ouvir atentamente o que os homens e os objetos querem ser”. As colunas são alargadas na base, tornando-se assentos informais para crianças durante o recreio ou os pais que as esperam ao fim das aulas.
Herman Hertzberg [apollo2.bmp]er considera as Escolas Apollo uma das melhores coisas que ele já fez, e diz que na verdade, não poderia fazer muito melhor.
Postado por Polyanna Alves Gonçalves às 22:15
0 comentários:
Postar um comentário
Postagem mais recente Postagem mais antiga Início
capítulos
mas quem?
graduanda arq.urb. - ufu


Um comentário:

  1. Este tipo de modelo, ao meu ver, é bem incomum, estas funcionalidades de ambências propõe metodologias extraordinárias nas formas de um projeto estrutural, bem pensado e analizado por um mestre em estruturalismo, para uso de um público que soubesse usá-lo e valorizá-lo.

    ResponderExcluir